自锁千斤顶的设计是液压原理与机械原理的完美结合,在活塞杆整个冲程范围内都有螺纹,完全顶升后,可将止退挡圈旋下,直至顶住缸体,由止退挡圈及缸体受力,从而可以撤去油泵,实现千斤顶的自锁,特别适用于砼梁及砼桥的持续支撑及测试作业。螺母自锁使负载更安全,能经受住偏载荷达千斤顶额定承载能力的10%,溢流孔兼有限制行程的功能,它主要适用于发电厂、石油化工、机械制造安装以及曲线桥定位的机械锁定,该产品具有体积小、使用方便、操作灵活、工作省力、携带方便、节省安装时间、提高工作效率等特点。
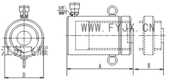
薄型螺母锁定液压千斤顶
薄型螺母锁定千斤顶适合于要求活塞长时间伸展持续支撑负荷的作业,高效的特性和机械承载的安全性。例如混凝土构件浇注和桥梁架设的支撑。单作用,活塞负荷复位设计,有贯穿整个行程长度的螺纹线与整个锁环螺纹相配合。操作非常简单,即先举起负荷,然后旋紧锁环,使其与千斤顶体紧缩为一体,再释放液体压力,依靠机械力量支撑负荷。
主要参数
- 承载能力
- 60~500T
- 工作行程
- 45~80T
- 本体高度
- 125~192mm
薄型螺母锁定液压千斤顶特点:
- 所有型号只能垂直作业,可选配合适的标准斜面承座以减少千斤顶的侧压风险;
- 单作用,活塞负载复位设计,螺母锁定使负载更安全;
- 螺纹活塞有耐磨镀层,缸体内侧镀硬铬;
- 特别的复合材料涂层使耐磨能力更强,摩擦力更小;
- 可承受额定载荷能力10%的偏载;
- 高度极低,适用于空间受限的场合。
薄型螺母锁定液压千斤顶技术参数:

| 型 号 | 承载能力 | 工作行程 | 本体高度 | 油缸外径 | 活塞杆直径 | 顶帽直径 | 工作压力 |
| FY-CLP-60T-50 | 60T | 50 | 125 | 140 | Tr105×4 | 96 | 70MPa |
| FY-CLP-100T-50 | 100T | 50 | 137 | 170 | Tr135×6 | 126 | |
| FY-CLP-100T-80 | 100T | 80 | 170 | 170 | Tr130×6 | 80 | |
| FY-CLP-160T-45 | 160T | 45 | 148 | 220 | Tr170×6 | 150 | |
| FY-CLP-200T-45 | 200T | 45 | 155 | 245 | Tr190×6 | 180 | |
| FY-CLP-250T-45 | 250T | 45 | 159 | 275 | Tr215×6 | 180 | |
| FY-CLP-400T-45 | 400T | 45 | 178 | 355 | Tr265×6 | 210 | |
| FY-CLP-500T-45 | 500T | 45 | 192 | 410 | Tr305×6 | 240 |
薄型螺母锁定液压千斤顶应用场合:
薄型螺母锁定液压千斤顶用于桥梁同步顶升维修更换橡胶支座,以及机械维修中可做永久支撑
机械式螺母锁定千斤顶
机械式螺母锁定千斤顶结合了其他千斤顶的功能,千斤顶机械承载的安全性,适用于要求活塞长时间伸展持续支撑负荷作业。
主要参数
- 承载能力
- 50~1000T
- 工作行程
- 50~500mm
- 本体高度
- 164~945mm
机械式螺母锁定千斤顶特点:
- 用于提升和机械负荷支撑;
- 螺纹活塞有耐磨镀层,缸体内壁镀硬铬;
- 绝对机械式锁定负载;
- 高温烤漆表面耐腐蚀及撞击;
- 千斤顶起升到指定高度,旋下锁定螺母即可撤去泵站,从而实现长时间支撑负荷作业。
机械式螺母锁定千斤顶技术参数:

| 型 号 | 承载能力T | 工作行程MM | 本体高度MM | 油缸外径MM | 活塞杆直径MM | 顶帽直径MM | 工作压力 |
| FY-CLL-50T-50 | 50T | 50 | 164 | 125 | Tr95×4 | 70 | 70MPa |
| FY-CLL-50T-100 | 50T | 100 | 214 | 125 | Tr95×4 | 70 | |
| FY-CLL-50T-150 | 50T | 150 | 264 | 125 | Tr95×4 | 70 | |
| FY-CLL-50T-200 | 50T | 200 | 314 | 125 | Tr95×4 | 70 | |
| FY-CLL-50T-150-2 | 50T | 250 | 365 | 127 | Tr95×4 | 70 | |
| FY-CLL-50T-300 | 50T | 300 | 415 | 127 | Tr95×4 | 70 | |
| FY-CLL-100T-50 | 100T | 50 | 190 | 170 | Tr130×6 | 80 | |
| FY-CLL-100T-100 | 100T | 100 | 237 | 170 | Tr130×6 | 80 | |
| FY-CLL-100T-100-2 | 100T | 100 | 240 | 170 | Tr130×6 | 80 | |
| FY-CLL-100T-150 | 100T | 150 | 287 | 170 | Tr130×6 | 71 | |
| FY-CLL-100T-200 | 100T | 200 | 337 | 170 | Tr130×6 | 80 | |
| FY-CLL-100T-200-2 | 100T | 200 | 340 | 170 | Tr130×6 | 80 | |
| FY-CLL-100T-260 | 100T | 260 | 400 | 170 | Tr130×6 | 80 | |
| FY-CLL-100T-300 | 100T | 300 | 440 | 170 | Tr130×6 | 80 | |
| FY-CLL-150T-50 | 150T | 50 | 209 | 210 | Tr160×6 | 110 | |
| FY-CLL-150T-100 | 150T | 100 | 259 | 210 | Tr160×6 | 110 | |
| FY-CLL-150T-150 | 150T | 150 | 309 | 210 | Tr160×6 | 110 | |
| FY-CLL-150T-200 | 150T | 200 | 359 | 210 | Tr160×6 | 110 | |
| FY-CLL-150T-250 | 150T | 250 | 409 | 210 | Tr160×6 | 110 | |
| FY-CLL-150T-300 | 150T | 300 | 459 | 210 | Tr160×6 | 110 | |
| FY-CLL-200T-50 | 200T | 50 | 243 | 240 | Tr190×6 | 120 | |
| FY-CLL-200T-150 | 200T | 150 | 343 | 235 | Tr185×6 | 130 | |
| FY-CLL-200T-150-2 | 200T | 150 | 343 | 240 | Tr190×6 | 120 | |
| FY-CLL-200T-200 | 200T | 200 | 393 | 240 | Tr190×6 | 120 | |
| FY-CLL-200T-250 | 200T | 250 | 443 | 240 | Tr190×6 | 120 | |
| FY-CLL-200T-300 | 200T | 300 | 493 | 240 | Tr190×6 | 120 | |
| FY-CLL-250T-50 | 250T | 50 | 249 | 275 | Tr215×6 | 135 | |
| FY-CLL-250T-150 | 250T | 150 | 349 | 275 | Tr215×6 | 135 | |
| FY-CLL-250T-200 | 250T | 200 | 399 | 275 | Tr215×6 | 135 | |
| FY-CLL-250T-300 | 250T | 300 | 499 | 275 | Tr215×6 | 135 | |
| FY-CLL-300T-50 | 300T | 50 | 295 | 310 | Tr240×6 | 150 | |
| FY-CLL-300T-150 | 300T | 150 | 395 | 310 | Tr240×6 | 150 | |
| FY-CLL-300T-200 | 300T | 200 | 445 | 310 | Tr240×6 | 150 | |
| FY-CLL-300T-250 | 300T | 250 | 495 | 310 | Tr240×6 | 150 | |
| FY-CLL-300T-250-2 | 300T | 250 | 495 | 310 | Tr240×6 | 150 | |
| FY-CLL-400T-50 | 400T | 50 | 335 | 350 | Tr265×6 | 170 | |
| FY-CLL-400T-150 | 400T | 150 | 435 | 350 | Tr265×6 | 170 | |
| FY-CLL-400T-200 | 400T | 200 | 485 | 350 | Tr265×6 | 170 | |
| FY-CLL-400T-300 | 400T | 300 | 585 | 350 | Tr265×6 | 170 | |
| FY-CLL-500T-50 | 500T | 50 | 380 | 415 | Tr305×6 | 190 | |
| FY-CLL-500T-150 | 500T | 150 | 480 | 415 | Tr305×6 | 190 | |
| FY-CLL-500T-200 | 500T | 200 | 530 | 415 | Tr305×6 | 190 | |
| FY-CLL-500T-300 | 500T | 300 | 630 | 415 | Tr305×6 | 190 | |
| FY-CLL-600T-50 | 600T | 50 | 395 | 445 | Tr330×6 | 215 | |
| FY-CLL-600T-150 | 600T | 150 | 495 | 445 | Tr330×6 | 215 | |
| FY-CLL-600T-200 | 600T | 200 | 545 | 445 | Tr330×6 | 215 | |
| FY-CLL-600T-300 | 600T | 300 | 645 | 445 | Tr330×6 | 215 | |
| FY-CLL-800T-50 | 800T | 50 | 455 | 525 | Tr380×6 | 255 | |
| FY-CLL-800T-150 | 800T | 150 | 555 | 525 | Tr380×6 | 255 | |
| FY-CLL-800T-200 | 800T | 200 | 605 | 525 | Tr380×6 | 255 | |
| FY-CLL-800T-300 | 800T | 300 | 705 | 525 | Tr380×6 | 255 | |
| FY-CLL-1000T-50 | 1000T | 50 | 495 | 580 | Tr430×6 | 295 | |
| FY-CLL-1000T-150 | 1000T | 150 | 595 | 580 | Tr430×6 | 295 | |
| FY-CLL-1000T-200 | 1000T | 200 | 645 | 580 | Tr430×6 | 295 | |
| FY-CLL-1000T-300 | 1000T | 300 | 745 | 580 | Tr430×6 | 295 | |
| FY-CLL-1000T-500 | 1000T | 500 | 945 | 580 | Tr430×6 | 295 |
Copyright @ 2009-2014 [PA网址:haiyiren.com] 江苏PA网址
机械制造有限公司 All rights reserved.
网站地图








